1670-905

Home Plans | all american dream home

1670-905 - All American Dream Homes | Custom Home Builder
AAR-FOUNDATION-1670 905 SW  | AADH

This is a beautiful modular home waiting for your family! Let us know how we can help you find your dream home.

Features

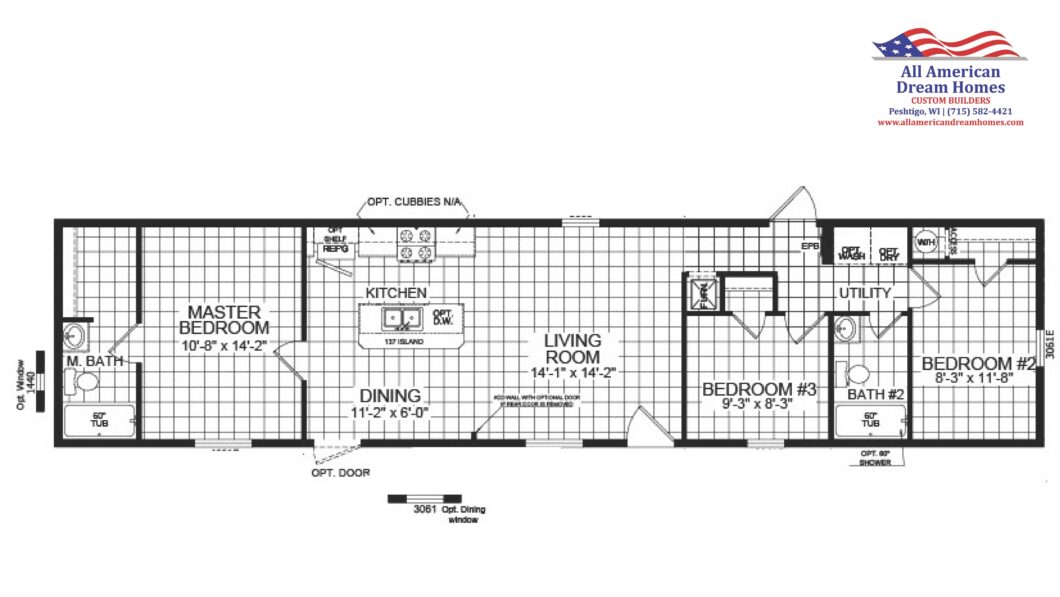
Bedroom: 3

Bathroom: 2

Sq. Ft.: 1001

 

Blueprint & Photos

All American Dream Homes is a custom builder based in northern Wisconsin. Check out our other modular homes. Our family is here to serve yours and we look forward to working with you! 

We also offer a wide-array of modular homes. Check them out today.

This home is engineered by Champion.

Address:Ranch
City:Champion
Floors:1
Square Feet:1001
Bedrooms:3
Bathrooms:2
Garage:Optional
AAR-FOUNDATION-1670 905 SW  | AADH
=