591 MAPLE STREET/BUSINESS 41 PESHTIGO, WI 54157
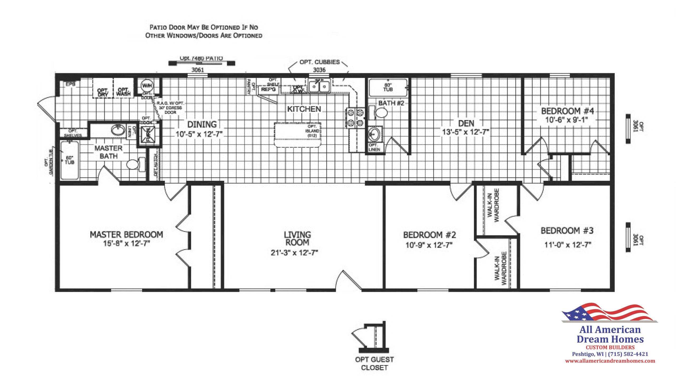
1,483 sqft
4 Bedrooms
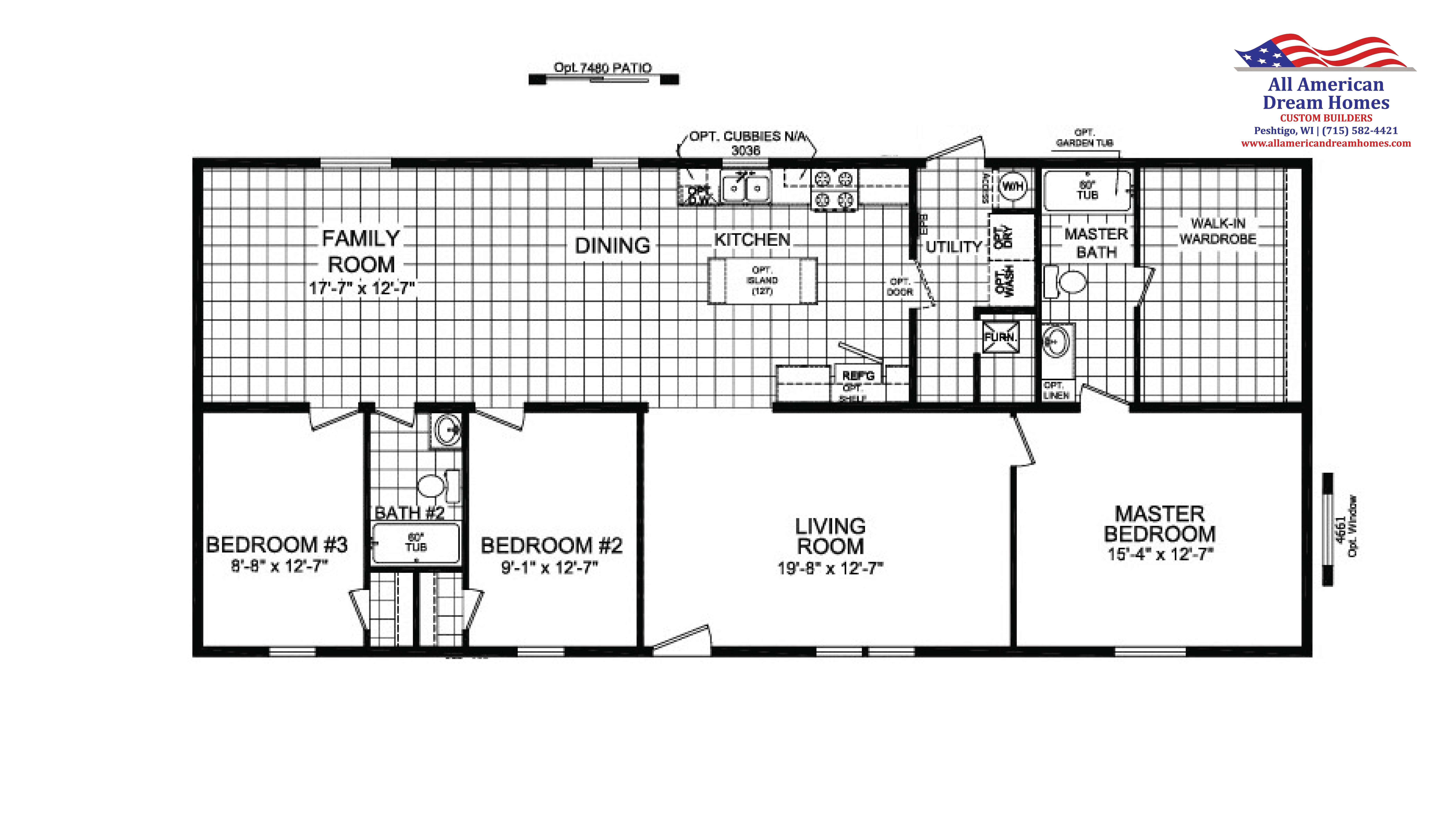
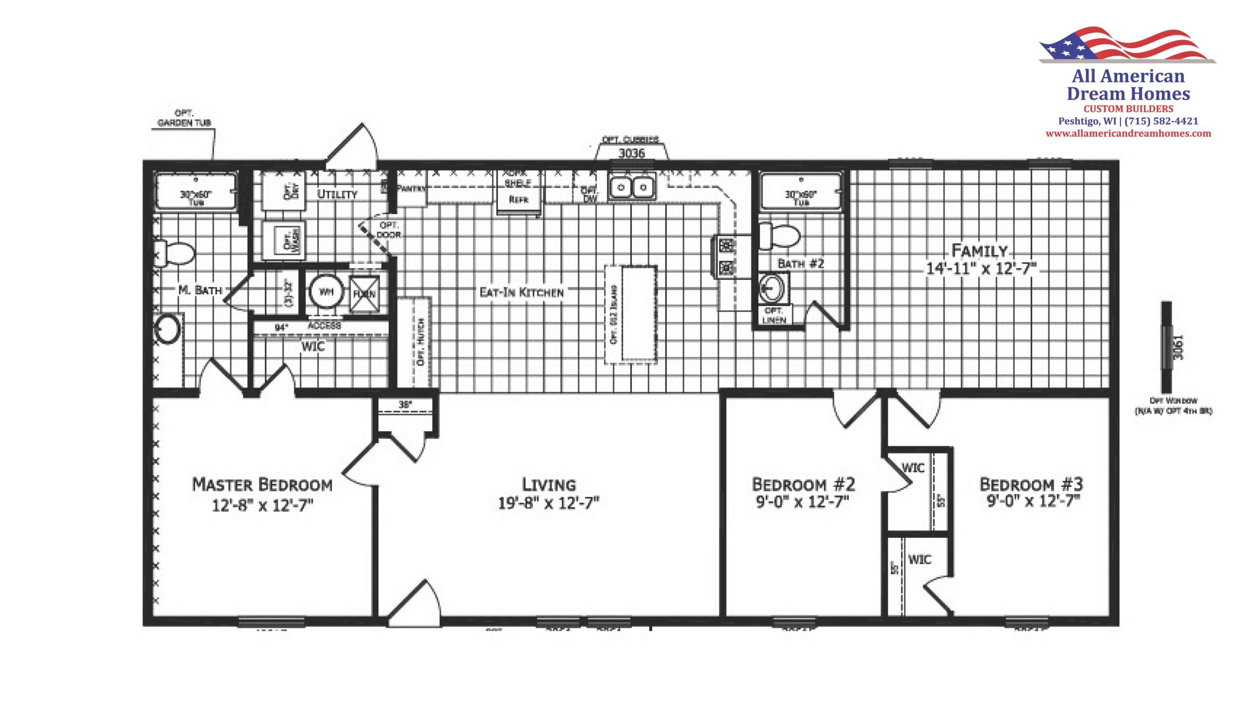
2 Baths
1,552 sqft
3 Bedrooms
1,600 sqft
1,706 sqft
1,813 sqft
1,707 sqft