Blackstone

Home Plans | all american dream home

Blackstone - All American Dream Homes | Custom Home Builder
AAS-CORNERSTONE-Blackstone-Exterior  | AADH

This is a beautiful modular home waiting for your family! Let us know how we can help you find your dream home.

Features

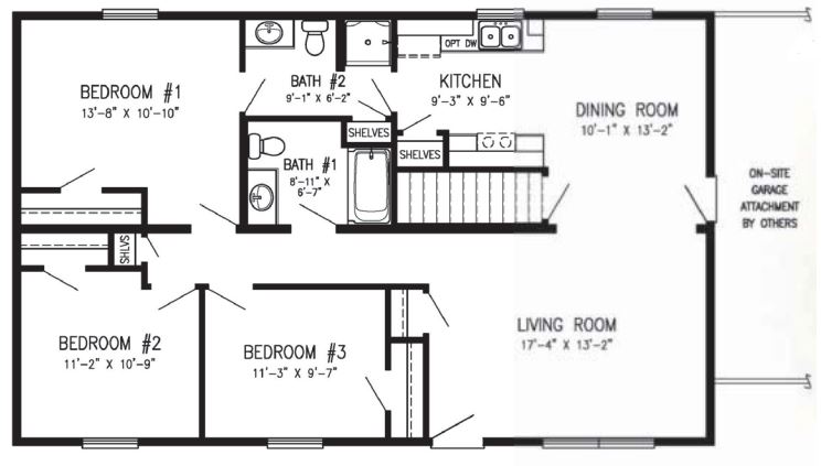
Bedroom: 3

Bathroom: 1.75

Sq. Ft.: 1,232

 

Blueprint & Photos

All American Dream Homes is a custom builder based in northern Wisconsin. Check out our other modular homes. Our family is here to serve yours and we look forward to working with you! 

We also offer a wide-array of site-built homes. Check them out today.

This home is engineered by Stratford.

Address:Ranch
City:Stratford
Floors:1
Square Feet:1,232
Bedrooms:3
Bathrooms:1.75
Garage:Optional
AAS-CORNERSTONE-Blackstone-Exterior  | AADH
=